Kontaktujte nás: +420 603566002 | info@technisoft.cz

PROJECT MANAGEMENT

ŘÍZENÍ A KONTROLA STAVEB, INŽENÝRING, POVOLENÍ A DOKUMENTACE, OPRAVY A REKONSTRUKCE, RD, FASÁDY, STŘECHY, OBKLADY, DLAŽBY

Rodinné domky a develop.projekty

Developerské projekty:

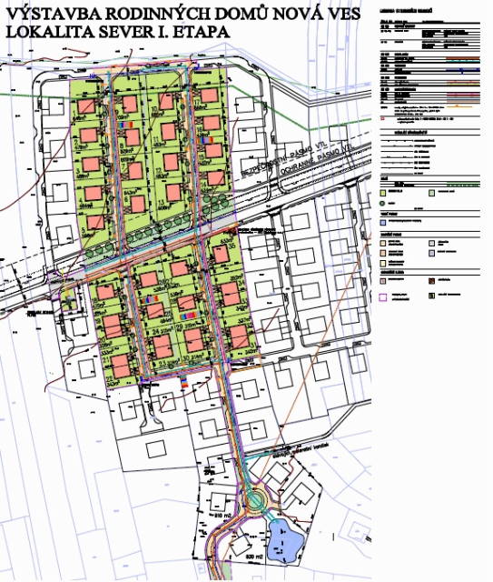
výstavba 29 rodinných domků v obci Nová Ves u Plzně

lokalita sever I.etapa, přípravné práce

  • činnost projektového manažera
  • inženýrská činnost
  • realitní činnost

výstavba RD v lokalitě "U bažantnic", Třebestovice

  • činnost generálního projektanta
  • inženýrská činnost

 

Výstavba a technické dozory při realizaci rodinných domků:

 dodavatel hrubé stavby a koordinátor výstavby:

  •  RD Černošice u Prahy

 koordinátor výstavby a technický dozor investora:

  • vila Pod Havránkou, Praha-Trója
  • RD Zeleneč
  • rodinný domek, Třebotov
  • RD V Babyku (znalecký posudek)
  • rodinný dům - dřevostavba, Praha-Hostavice